ホーム >> プラズマテレビのあるシーン >> 04.都市デザインシステムが企画・設計したコーポラティブハウス「大田区I邸」PAGE-1
<< TOP PAGE-1 PAGE-2 >>

プラズマテレビのあるシーン

都市デザインシステムが企画・設計した「大田区I邸」「ギリシャ」をテーマに創造したホワイト&ブルーな空間

OPEN >>    
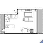
  「間取り図」OPEN >>
OPEN >>
OPEN >>
 OPEN >>
 OPEN >>
 OPEN >>
写 真:吉田素子
文:長嶋由里子
 

白のグラデーションで6面を彩った エーゲ海の風が吹き抜けるような住まい

  新しい家を望んだI夫妻は、都市デザインシステムが企画・設計するコーポラティブハウスで住まいづくりすることを決めました。

「今から約7年前に雑誌に掲載されていた小さなコラムで知って以来、ずっと気になっていたんですよ。とは言え、家の購入を決めた時はハウスメーカーや建築家への依頼、分譲マンションや建売住宅などいろいろな選択肢を考えた。ふたりで話し合いを重ねた結果、自由設計という魅力や都市デザインシステムのサポート力などのメリットが決め手となって、コーポラティブハウスを選びました」

家をつくるにあたり、ご夫妻が求めたのは「エーゲ海テイストの白い家」でした。そうして、コンセプトに「ギリシャ」を掲げ、白を基調とすることに。自分たちが求める城を現実のものとするために、設計者との話し合いには時間を惜しまなかったそう。

「6時間にわたる設計打ち合わせを毎週1回10ヶ月続けました。妥協はしたくなかったんです。プランが自分たちのイメージに近づいていくステップは、大変だったけれど、楽しかったですね。設計士の児島秀樹さんもあきらめずに、納得のいくものをつくろうと尽力してくださった。『思い入れの深い物件です』と言われた時は、とても嬉しかったのをおぼえています」

ホワイトカラーを追求したご夫妻は、フローリングまでをも白に決定。壁、天井、ブラインド、床、つくりつけの家具・・・・・・すべての面を白で覆ったのです。それぞれの面の白が織り成す繊細なグラデーションが美しいインテリアは、日常生活を送っているとは思えない異空間。そして、その真っ白な空間に置かれるブルーの家具や小物が、非日常的空間のイメージに拍車をかけています。

「想像を超える理想の家が完成しました。3階のLDKは眩しいほど明るいですよ。室内の白と外の光が解け合う環境で、ソファに横になる時間は至極のひととき。2階を寝る場とサニタリィと割り切り、天井高を抑えて3階の天井高を確保したり、LDKと階段部分は塗り壁にするなど、『癒しの空間』を考え抜いただけありました」

前の家でも使っていた素焼きのプランターポットを白く塗装するほど、白にこだわるご夫妻。LDKには、白とブルー、そして観葉植物のグリーンしかありません。とても気になるのですが、白のフローリングは汚れが目立ち、掃除が大変なのでは?

「いや、まったく苦にはなりませんよ。掃除する気にさせてくれるインテリアなんです」
次のページへ続く>>
<< TOP PAGE-1 PAGE-2 >>